關渡國中防災教育專區

2022年4月24日 星期日

臺北市關渡國民中學111年防空疏散避難演練矩陣式腳本

 詳下列連結:

https://drive.google.com/drive/folders/1QGYurki-bJihVBKYYlsMvTbVKcDIRMzE

張貼者: 關渡國中防災教育專區 於 晚上11:16 沒有留言:
以電子郵件傳送這篇文章BlogThis!分享至 X分享至 Facebook分享到 Pinterest

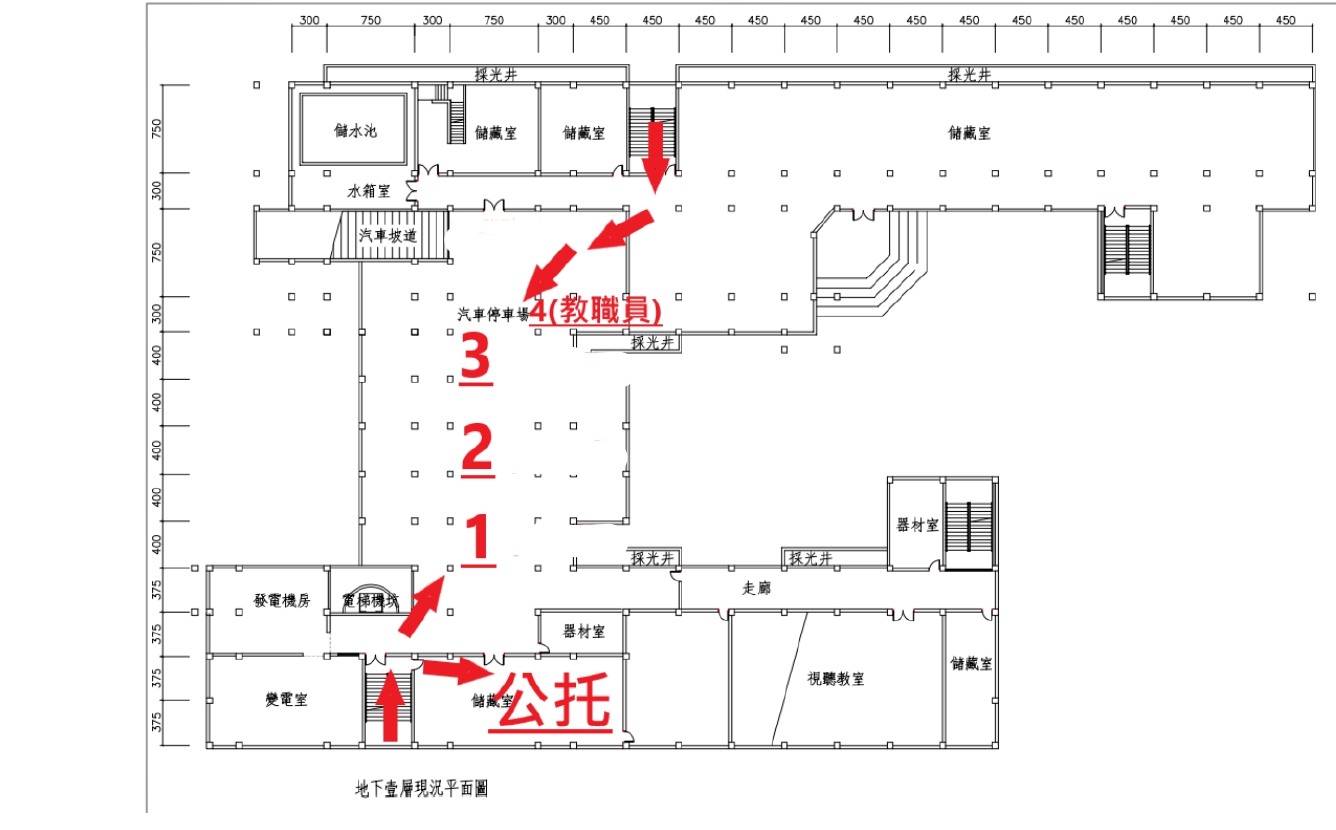
臺北市立關渡國民中學-防空疏散演練實施計畫及校園防災地圖(空襲災害)

防空疏散演練實施計畫:

https://drive.google.com/drive/u/1/folders/1QGYurki-bJihVBKYYlsMvTbVKcDIRMzE


防空平面圖(地面疏散路線)
















防空平面圖(地下室避難所)














其中1、2、3區預定為學生避難區,4區為教職員避難區。

張貼者: 關渡國中防災教育專區 於 晚上11:11 沒有留言:
以電子郵件傳送這篇文章BlogThis!分享至 X分享至 Facebook分享到 Pinterest
較新的文章 較舊的文章 首頁
訂閱: 意見 (Atom)

關於我自己

關渡國中防災教育專區
檢視我的完整簡介

網誌存檔

  • ►  2026 (17)
    • ►  3月 (7)
    • ►  2月 (5)
    • ►  1月 (5)
  • ►  2025 (39)
    • ►  12月 (7)
    • ►  11月 (2)
    • ►  10月 (2)
    • ►  9月 (14)
    • ►  7月 (1)
    • ►  6月 (4)
    • ►  4月 (2)
    • ►  3月 (5)
    • ►  1月 (2)
  • ►  2024 (16)
    • ►  12月 (2)
    • ►  11月 (2)
    • ►  10月 (6)
    • ►  9月 (6)
  • ►  2023 (12)
    • ►  10月 (10)
    • ►  6月 (1)
    • ►  3月 (1)
  • ▼  2022 (16)
    • ►  10月 (4)
    • ►  9月 (8)
    • ►  6月 (1)
    • ►  5月 (1)
    • ▼  4月 (2)
      • 臺北市關渡國民中學111年防空疏散避難演練矩陣式腳本
      • 臺北市立關渡國民中學-防空疏散演練實施計畫及校園防災地圖(空襲災害)
  • ►  2021 (12)
    • ►  10月 (10)
    • ►  3月 (2)
  • ►  2020 (16)
    • ►  11月 (16)
  • ►  2019 (18)
    • ►  11月 (18)
  • ►  2018 (48)
    • ►  11月 (3)
    • ►  10月 (45)
  • ►  2017 (33)
    • ►  10月 (33)
  • ►  2016 (13)
    • ►  10月 (13)
圖片視窗主題. 技術提供:Blogger.